(주)한구조기술사사무소

㈜한구조기술사사무소

건축물 구조안전과 고객 만족의 완벽한 조화

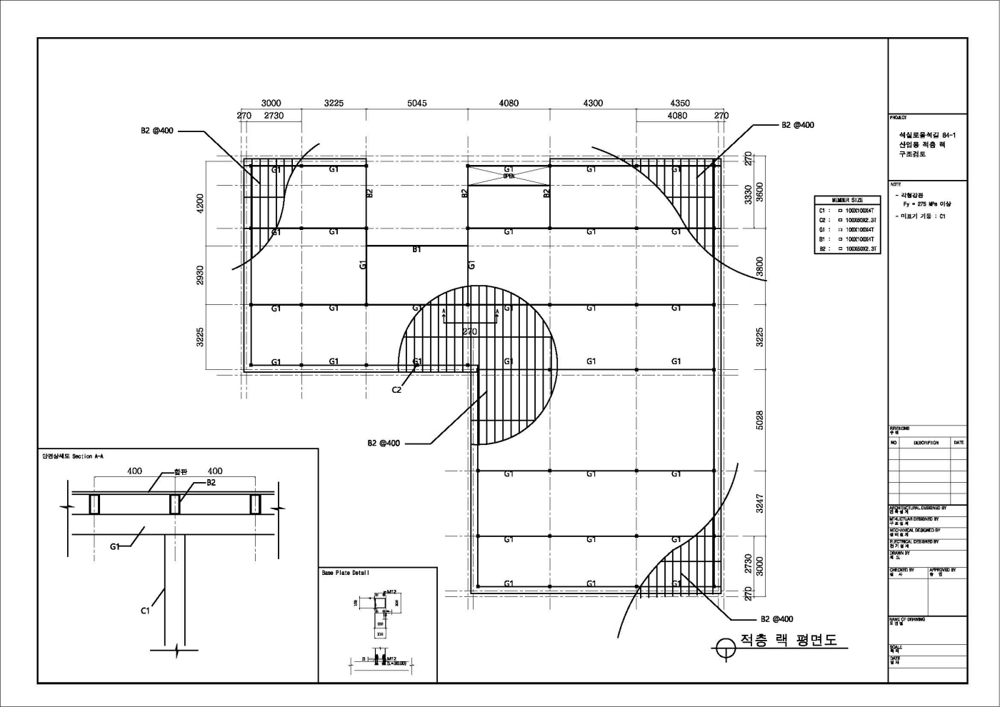
남양주 와부읍 적층 랙 구조검토 (발주처 : 스타일가구)

페이지 정보

profile_image
작성자 최고관리자
댓글 0건 조회 52회

본문

fb8d7c8ba1147a3b8de8459d303b93bc_1711633893_4385.jpg
fb8d7c8ba1147a3b8de8459d303b93bc_1711633893_5397.jpg
fb8d7c8ba1147a3b8de8459d303b93bc_1711633893_6284.jpg
fb8d7c8ba1147a3b8de8459d303b93bc_1711633893_7274.jpg
fb8d7c8ba1147a3b8de8459d303b93bc_1711633893_8309.jpg
fb8d7c8ba1147a3b8de8459d303b93bc_1711633893_9501.jpg
fb8d7c8ba1147a3b8de8459d303b93bc_1711633894_063.jpg
fb8d7c8ba1147a3b8de8459d303b93bc_1711633894_1829.jpg
fb8d7c8ba1147a3b8de8459d303b93bc_1711633894_3092.jpg
fb8d7c8ba1147a3b8de8459d303b93bc_1711633894_4453.jpg
 

댓글목록

등록된 댓글이 없습니다.

블로그
카카오톡