(주)한구조기술사사무소

㈜한구조기술사사무소

건축물 구조안전과 고객 만족의 완벽한 조화

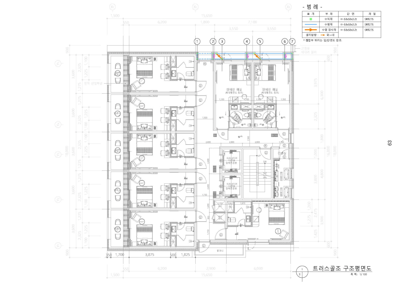
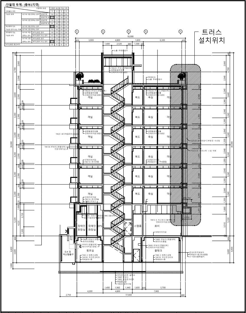
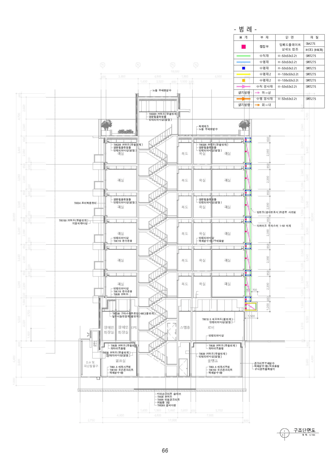
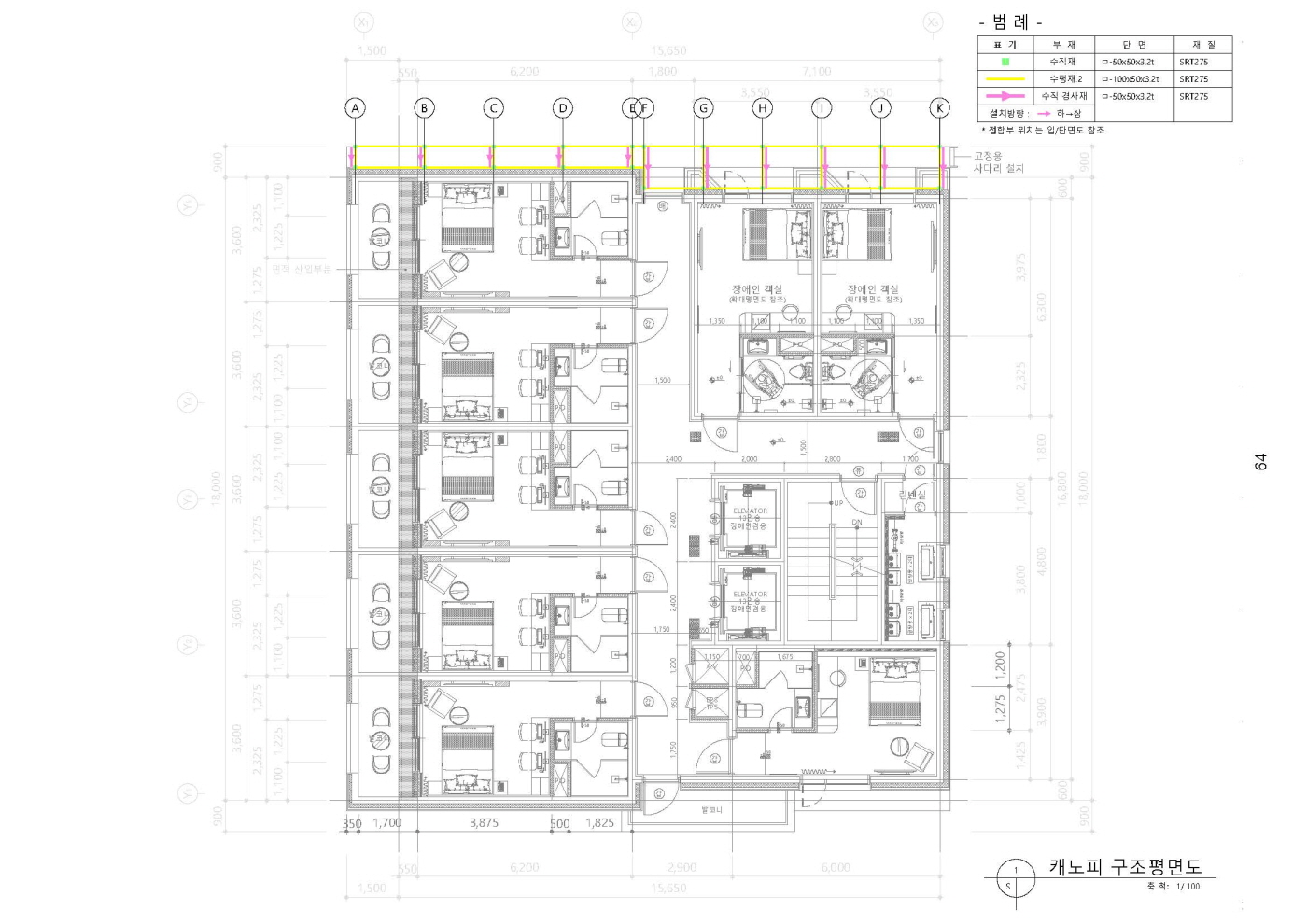
외벽 마감 설치용 하지철물 구조검토 (발주처 : 모아건축사사무소)

페이지 정보

profile_image
작성자 최고관리자
댓글 0건 조회 75회

본문

fb8d7c8ba1147a3b8de8459d303b93bc_1711632857_6493.jpg
fb8d7c8ba1147a3b8de8459d303b93bc_1711632857_7788.jpg
fb8d7c8ba1147a3b8de8459d303b93bc_1711632866_7735.jpg
fb8d7c8ba1147a3b8de8459d303b93bc_1711632866_9022.jpg
fb8d7c8ba1147a3b8de8459d303b93bc_1711632867_019.jpg
fb8d7c8ba1147a3b8de8459d303b93bc_1711632867_1688.jpg
fb8d7c8ba1147a3b8de8459d303b93bc_1711632867_2912.jpg
fb8d7c8ba1147a3b8de8459d303b93bc_1711632867_4138.jpg
fb8d7c8ba1147a3b8de8459d303b93bc_1711632867_5488.jpg
fb8d7c8ba1147a3b8de8459d303b93bc_1711632867_6641.jpg
fb8d7c8ba1147a3b8de8459d303b93bc_1711632890_331.jpg
fb8d7c8ba1147a3b8de8459d303b93bc_1711632890_5243.jpg
fb8d7c8ba1147a3b8de8459d303b93bc_1711632890_6372.jpg
fb8d7c8ba1147a3b8de8459d303b93bc_1711632890_7616.jpg
fb8d7c8ba1147a3b8de8459d303b93bc_1711632890_9042.jpg
fb8d7c8ba1147a3b8de8459d303b93bc_1711632891_0394.jpg
fb8d7c8ba1147a3b8de8459d303b93bc_1711632891_1709.jpg
fb8d7c8ba1147a3b8de8459d303b93bc_1711632891_3149.jpg
fb8d7c8ba1147a3b8de8459d303b93bc_1711632891_4674.jpg
fb8d7c8ba1147a3b8de8459d303b93bc_1711632891_6292.jpg
fb8d7c8ba1147a3b8de8459d303b93bc_1711632900_7315.jpg
fb8d7c8ba1147a3b8de8459d303b93bc_1711632900_9256.jpg
fb8d7c8ba1147a3b8de8459d303b93bc_1711632901_0515.jpg
fb8d7c8ba1147a3b8de8459d303b93bc_1711632901_1629.jpg
fb8d7c8ba1147a3b8de8459d303b93bc_1711632901_2761.jpg
fb8d7c8ba1147a3b8de8459d303b93bc_1711632901_398.jpg
fb8d7c8ba1147a3b8de8459d303b93bc_1711632901_529.jpg
fb8d7c8ba1147a3b8de8459d303b93bc_1711632901_6572.jpg
 

댓글목록

등록된 댓글이 없습니다.

블로그
카카오톡